

| 鹿角市花輪字刈又46-4 | 価格 | 300万円 | 間取り | 8K |
| 交通/最寄りバス停まで徒歩10分 | 築年月 | 昭和49年 | 面積 | 土地 299.31u 建物 1F115.93 u 2F32.29u |
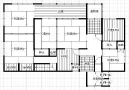
1F |
2F |
|
| 都市計画 | 未線引き | 用途地域 | 無指定地域 |
| 建ぺい率 | 70% | 容積率 | 200% |
| 建物面積 | 1F115.93u 2F 32.29u |
駐車場 | 2台 |
| 階建て/階 | 2階建 | 車庫 | 有 |
| 地目 | 宅地 | 地積 | 299.31u |
| 現況 | 空家 | 構造 | 木造 |
| 引渡し | 相談 | 取引態様 | 媒介 |
| 設 備 | 上水道、汲取りトイレ |
| 備 考 | |
| 連絡先 | (有)サンケイ土地 秋田県鹿角市花輪字寺ノ後32番地1 電話0186-23-6093 FAX0186-23-6095 |